
De gemeente Nunspeet zet belangrijke stappen voor de ontwikkeling van een multifunctioneel sportpark in Hulshorst. Het nieuwe sportpark moet niet alleen de sportieve mogelijkheden vergroten, maar ook zorgen voor een veiligere en duurzamere inrichting van het gebied. Het plan omvat onder andere een nieuwe parkeervoorziening, een moderne paardenbak en een combinatiebaan voor schaatsen en skeeleren.
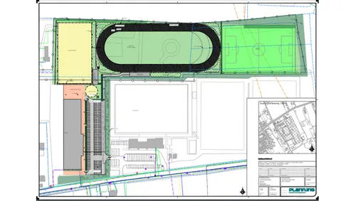
Het vernieuwde sportpark Hulshorst krijgt een geheel nieuwe opzet om beter aan te sluiten bij de wensen van gebruikers en inwoners. Een van de grootste wijzigingen is de aanleg van een ruime parkeervoorziening. Dit moet een einde maken aan de verkeersproblemen langs de Brandsweg, waar auto’s nu vaak onveilig geparkeerd staan. Met ruim 100 nieuwe parkeerplaatsen ontstaat er meer ruimte voor bezoekers en hulpdiensten.
Daarnaast wordt de huidige buitenbak van de manege verplaatst en vervangen door een moderne paardenbak met een geluidswal. De manege heeft gekozen voor een 333-meter combinatiebaan die zowel voor skeeleren als schaatsen gebruikt kan worden. Dit ontwerp biedt meer ruimte voor andere functies en zorgt ervoor dat minder groen verwijderd hoeft te worden.
Het sportpark is niet alleen gericht op sport, maar ook op verbinding en duurzaamheid. Inwoners krijgen bijvoorbeeld meer mogelijkheden om te sporten dankzij de nieuwe combinatiebaan. Daarnaast blijft het park toegankelijk voor recreatieve gebruikers, zoals hardloopgroepen en wielrenners.
De gemeenteraad bespreekt het voorstel voor het vernieuwde sportpark op 19 december 2024. Als alles volgens plan verloopt, start de uitvoering in 2025. Het vernieuwde sportpark Hulshorst zal niet alleen een belangrijke sportieve functie hebben, maar ook bijdragen aan de leefbaarheid en veiligheid van de omgeving.

Voor meer nieuws kunt u Nunspeet Nieuws toevoegen op uw social media kanalen. Ook kunt u lid worden van onze nieuwsbrief. En kunt u ons via push-meldingen op uw beeldscherm krijgen. Ook voor regionaal nieuws kunt u terecht bij de buren. Apeldoorn Nieuws en Harderwijk Nieuws en Ermelo Nieuws. Adverteren kan natuurlijk ook! Adverteren op de Facebook-pagina voor jouw gemeente van Nieuws.nl? Mail dan naar [email protected]. Je kunt ook de redactie bereiken via deze mail of bel naar 06-42022831.